Bản vẽ cột đèn chiếu sáng chuẩn kỹ thuật là cơ sở quan trọng giúp quá trình gia công, lắp đặt và thi công hệ thống chiếu sáng diễn ra chính xác, an toàn và đồng bộ. An Trường Thịnh với đầy đủ kích thước, cấu tạo chi tiết và tiêu chuẩn kỹ thuật rõ ràng, bản vẽ cột đèn giúp đơn vị thi công dễ triển khai, hạn chế sai sót, đảm bảo chất lượng và tuổi thọ lâu dài cho các công trình chiếu sáng ngoài trời.
Bản vẽ cột đèn chiếu sáng là tài liệu kỹ thuật đóng vai trò nền tảng trong quá trình triển khai các công trình chiếu sáng ngoài trời. Bản vẽ giúp các đơn vị thiết kế, gia công và thi công phối hợp đồng bộ, đảm bảo mọi hạng mục được thực hiện đúng thiết kế, đúng tiêu chuẩn và phù hợp với điều kiện thực tế.
Thông qua bản vẽ cột đèn, toàn bộ quá trình thi công được kiểm soát chặt chẽ và rõ ràng hơn, từ giai đoạn chuẩn bị đến lắp đặt hoàn thiện. Đặc biệt đối với các công trình hạ tầng quy mô lớn, bản vẽ cột đèn giao thông và bản vẽ móng trụ đèn chiếu sáng là cơ sở quan trọng để đảm bảo an toàn kết cấu và độ bền lâu dài.
Cụ thể, bản vẽ cột đèn mang lại các lợi ích sau:
Xác định chính xác kích thước, chiều cao và kết cấu cột đèn, giúp gia công và lắp đặt đúng yêu cầu kỹ thuật.
Hỗ trợ thi công móng trụ và bu lông neo đúng vị trí, đảm bảo khả năng chịu lực và an toàn khi vận hành.
Định hướng lắp đặt hệ thống điện và tiếp địa, hạn chế rủi ro mất an toàn điện.
Giảm thiểu sai sót và phát sinh trong thi công, từ đó tiết kiệm thời gian và chi phí đầu tư.
Nhờ có bản vẽ cột đèn chiếu sáng chuẩn kỹ thuật, quá trình thi công diễn ra thuận lợi, hiệu quả và đảm bảo chất lượng công trình trong suốt quá trình sử dụng.
.png)
Tùy theo mục đích sử dụng và không gian lắp đặt, bản vẽ cột đèn chiếu sáng hiện nay được thiết kế với nhiều dạng khác nhau nhằm đáp ứng yêu cầu kỹ thuật, thẩm mỹ và độ an toàn cho từng loại công trình. Việc lựa chọn đúng loại bản vẽ sẽ giúp quá trình thi công diễn ra thuận lợi và đạt hiệu quả sử dụng lâu dài.
Bản vẽ cột đèn giao thông được áp dụng cho đường phố, quốc lộ và tỉnh lộ, nơi có mật độ phương tiện cao. Loại bản vẽ này thường đi kèm bản vẽ móng trụ đèn chiếu sáng, yêu cầu khắt khe về khả năng chịu lực, chịu gió và độ ổn định kết cấu nhằm đảm bảo an toàn trong quá trình vận hành.
Loại bản vẽ này phù hợp cho các tuyến đường nội bộ, khu đô thị mới với chiều cao cột đèn phổ biến từ 6m – 8m. Bản vẽ CAD cột đèn chiếu sáng khu dân cư chú trọng sự cân đối giữa hiệu quả chiếu sáng, tính thẩm mỹ và chi phí đầu tư.
Bản vẽ CAD cột đèn chiếu sáng sân vườn thường có thiết kế gọn nhẹ, kiểu dáng linh hoạt nhằm hài hòa với cảnh quan xung quanh. Loại bản vẽ này ưu tiên yếu tố thẩm mỹ, phù hợp cho công viên, khuôn viên biệt thự và khu nghỉ dưỡng.
Xem thêm: Xây Dựng Trung Tâm Quản Lý Và Điều Hành Hệ Thống Chiếu Sáng Tại TP HCM
Đối với nhà máy và khu công nghiệp, bản vẽ CAD đèn chiếu sáng được thiết kế tập trung vào độ bền, khả năng chống ăn mòn và an toàn khi vận hành liên tục. Cột đèn thường có kết cấu chắc chắn, đáp ứng điều kiện làm việc ngoài trời khắc nghiệt.
Hiện nay, các bản vẽ cột đèn chiếu sáng chủ yếu được cung cấp dưới dạng file CAD, giúp dễ dàng chỉnh sửa, triển khai thi công và lưu trữ lâu dài cho các công trình chiếu sáng.
(1).png)
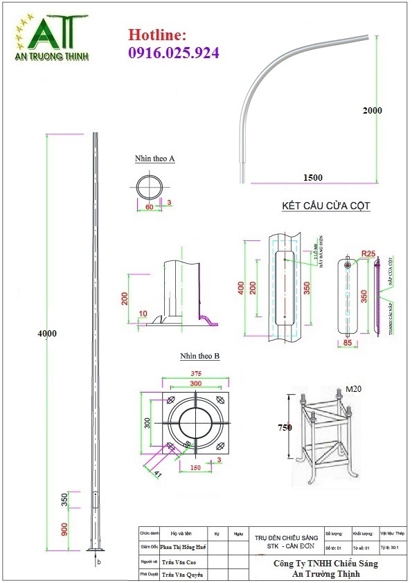
Một bản vẽ cột đèn chiếu sáng chuẩn kỹ thuật luôn thể hiện đầy đủ các bộ phận cấu tạo và thông số quan trọng, giúp quá trình gia công, lắp đặt và vận hành được thực hiện chính xác, an toàn. Các thông tin này là cơ sở để kiểm soát chất lượng cột đèn và đảm bảo tuổi thọ công trình.
Cụ thể, bản vẽ cột đèn thường bao gồm các nội dung sau:
Thân cột đèn: Thể hiện chiều cao tổng thể, kiểu dáng cột (côn tròn, bát giác), độ dày thép và vật liệu sử dụng, đảm bảo khả năng chịu lực và chịu gió theo yêu cầu thiết kế.
Cần đèn: Bao gồm cần đơn, cần đôi hoặc đa cần, kèm theo thông tin về chiều dài cần, góc vươn và vị trí lắp đèn, giúp phân bổ ánh sáng hiệu quả.
Bản vẽ móng trụ đèn chiếu sáng: Thể hiện kích thước móng, số lượng và khoảng cách bu lông neo, cao độ lắp đặt, đảm bảo cột đèn đứng vững và an toàn trong quá trình sử dụng.
Cửa cột đèn và bảng điện: Ghi rõ vị trí lắp đặt, kích thước cửa cột, sơ đồ bố trí bảng điện và đường dây, thuận tiện cho việc đấu nối và bảo trì.
Hệ thống tiếp địa và luồn dây điện: Đảm bảo an toàn điện, hạn chế rủi ro rò rỉ và hỗ trợ vận hành ổn định lâu dài.
Những cấu tạo và thông số kỹ thuật trên giúp cột đèn chiếu sáng đáp ứng yêu cầu về độ bền, an toàn khi lắp đặt và thuận tiện cho công tác bảo trì, sửa chữa trong suốt quá trình sử dụng.
Trong quá trình thiết kế và triển khai bản vẽ CAD cột đèn chiếu sáng, việc tuân thủ các tiêu chuẩn kỹ thuật hiện hành là yêu cầu bắt buộc nhằm đảm bảo chất lượng công trình, an toàn khi sử dụng và đáp ứng điều kiện nghiệm thu. Các tiêu chuẩn này là căn cứ quan trọng để đánh giá độ bền, khả năng chịu lực và hiệu quả chiếu sáng của hệ thống.
Một số nhóm tiêu chuẩn chính thường được áp dụng bao gồm:
Tiêu chuẩn vật liệu và mạ bảo vệ: Áp dụng cho thép chế tạo cột đèn và lớp mạ kẽm nhúng nóng, nhằm tăng khả năng chống ăn mòn, phù hợp với điều kiện môi trường ngoài trời.
Tiêu chuẩn thiết kế kết cấu: Quy định khả năng chịu gió, chịu tải trọng của thân cột, cần đèn và móng trụ, đặc biệt quan trọng đối với bản vẽ cột đèn giao thông và các tuyến đường lớn.
Tiêu chuẩn an toàn điện: Bao gồm yêu cầu về tiếp địa, cách điện, chống rò rỉ và bảo vệ thiết bị điện, đảm bảo hệ thống vận hành ổn định và an toàn cho người sử dụng.
Tiêu chuẩn chiếu sáng: Áp dụng cho từng khu vực như đường giao thông, khu dân cư, công viên, sân vườn… nhằm đảm bảo độ rọi, phân bố ánh sáng và tiết kiệm năng lượng.
Việc áp dụng đầy đủ và chính xác các tiêu chuẩn trên giúp bản vẽ cột đèn chiếu sáng đạt yêu cầu kỹ thuật, góp phần nâng cao độ bền công trình và hiệu quả khai thác trong thời gian dài.
Xem thêm: Cung Cấp Trụ Đèn Tín Hiệu Giao Thông THGT Tại Bến Tre
Trong quá trình triển khai thi công hệ thống chiếu sáng ngoài trời, bản vẽ cột đèn chiếu sáng là căn cứ kỹ thuật quan trọng cần được tuân thủ nghiêm ngặt. Việc sử dụng đúng bản vẽ không chỉ giúp thi công chính xác mà còn hạn chế rủi ro, sai sót và phát sinh chi phí không cần thiết.
Để quá trình thi công diễn ra hiệu quả và an toàn, các đơn vị cần lưu ý những điểm sau:
Kiểm tra sự phù hợp giữa bản vẽ và điều kiện thực tế: Đối chiếu kích thước, cao độ, vị trí lắp đặt trong bản vẽ với mặt bằng công trình trước khi thi công.
Sử dụng đúng bản vẽ đã được phê duyệt: Chỉ triển khai thi công theo phiên bản bản vẽ CAD cột đèn chiếu sáng đã được chủ đầu tư và đơn vị tư vấn kỹ thuật thông qua.
Thi công đúng theo bản vẽ móng trụ đèn chiếu sáng: Thực hiện chính xác kích thước móng, vị trí bu lông neo, cao độ và kết cấu móng để đảm bảo khả năng chịu lực của cột đèn.
Không tự ý thay đổi thông số kỹ thuật: Tránh thay đổi kích thước cột, vật liệu, độ dày thép hoặc kết cấu khi chưa có điều chỉnh kỹ thuật chính thức.
Phối hợp chặt chẽ giữa các bên liên quan: Đảm bảo sự đồng bộ giữa đơn vị thiết kế, gia công cột đèn và đội ngũ thi công lắp đặt trên công trường.
Tuân thủ đầy đủ các lưu ý trên sẽ giúp công trình chiếu sáng được thi công đúng thiết kế, vận hành an toàn, bền bỉ và đạt hiệu quả kinh tế lâu dài.
Kết luận
Bản vẽ cột đèn chiếu sáng chuẩn kỹ thuật là yếu tố không thể thiếu trong mọi công trình chiếu sáng ngoài trời. Từ thiết kế, gia công đến thi công thực tế, bản vẽ giúp đảm bảo độ chính xác, an toàn và hiệu quả lâu dài cho công trình.
Nếu bạn đang cần bản vẽ CAD cột đèn chiếu sáng, bản vẽ cột đèn giao thông hoặc bản vẽ CAD cột đèn chiếu sáng sân vườn, hãy liên hệ ngay với An Trường Thịnh để nhận đầy đủ hồ sơ kỹ thuật, đúng tiêu chuẩn và phù hợp với từng loại công trình.